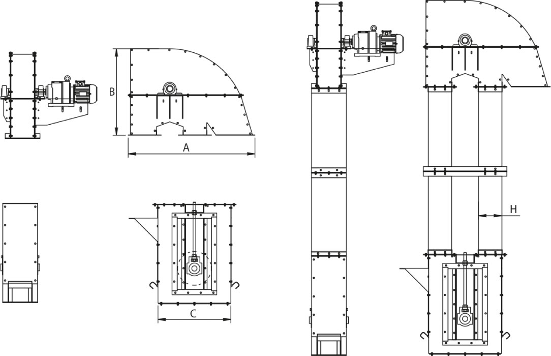
Buğdayın dikey olarak taşınmasında kullanılır. Alt ve üst başlık olmak üzere iki kısımdan oluşur. Bina yüksekliğine göre boru uzunluğu ayarlanır. Elevatörün tahriki üst başlıkta bulunan redüktörlü motordan yapılır. Mil merkez ayarlarının yapılabilmesi için motor sehpası kızaklı olup kolaylıkla ayarlanabilir. Kayış gerginliği de yataklara bağlı olan gerdirme mekanizması ile sağlanmaktadır.

